Tablet PC

Sketch News - Keep informed

Leading The Way With

Tablet PC  Sketching Solutions

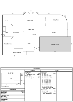
Use the AreaSketch Pro desktop solution to quickly draw any area, regardless of complexity, to produce a professional report complete with area square footage and perimeter calculations.

Motion_Tablet05

Time is Money! There isn’t another product on the market that will allow you to finish your sketch assignment quicker than AreaSketch Pro.

Designed specifically for field professionals required to draw and accurate sketch and calculate area square footage and perimeter values, AreaSketch stands alone when compared to existing sketch solutions. FreeForm Technology™ allows users to draw any sketch as data is being gathered, new areas can be created on the fly without having to finish the first area, switch drawing directions with Bi-Directional Drawing, placing a label, or other types of annotation is completely FreeForm.  Line dimensions can be edited at any time with point & click simplicity.  Calculator functions are included to allow the addition or subtraction of any value from an existing line to properly close the area.

Our advanced technology automates everything including Auto-Center and Auto-Scaling. The sketch is always centered and scaled perfectly.  Line dimensions can be flipped inside, outside, or turned off completely for each individual line or the entire area. 

Area names and types can be customized for every situation including the area multiplier and modifier capability.  The area multiplier will multiply the base area square footage by any factor. The modifier function allows areas to subtotal to a specific area type but also add or subtract from another area. Duplicate area names can be used on the same sketch.

The 3 Phase Close function guarantees a perfect close every time.  AreaSketch always displays the exact horizontal and vertical distance required to close, or finish any area.  Clicking on the displayed distance will automatically draw that line.

The professional looking sketch including area calculations can be printed or imported into forms applications, CAMA systems, or narrative reports as a jpg image.

Features and Benefits

  • Calculate
    Area Square Footage
    Area Perimeter
    Area Width
    Area Height
  • Bi-Directional Drawing
    Insert and Append
  • Area Property
    Line Style, Color, Pt.
  • Auto Scaling
  • Auto Label
    Area Name w/ SqFt
  • Auto Zoom
    Create and Edit
  • Angles
    Rise & Run
    Relative
    Absolute
  • Arcs Chord
    Perimeter
    Height
    Degree
  • Picture Support
    JPG
    Metafile
  • File Format
    XML
    DWG
  • Operating System
    Browser Based
    MS Windows XP.x
    Pocket PC
    Tablet PC
    Palm OS
  • Developer SDK
    ActiveX Control

 

 

AS Print Sm04

FieldNotes, Inc. - 512 402-0402  Monday - Friday  9 AM to 5 PM CST

Copyright 2000-2021 FieldNotes, Inc. All right reserved.  FieldNotes, AreaSketch, AreaCALC, QuickDraw Mode, QuickArc, and QuickClose are all registered trademarks belonging to FieldNotes, Inc. All other trademarks and trade names belong to their respective owners.  Patent Pending on DrawPad GUI.  All violations will be prosecuted to the full extent of the law.

Quick Links

Video Tour

Download

User Guide

512 402-0402